
刚毕业,对未来迷茫
大学、高中刚毕业,期待学一门有
前景的技术

室内行业老江湖
学CAD升级的不仅是你的技能,还有职
业角色,懂设计发展“钱”景更足

跨专业转行
非室内或家装行业迫切要转行的群体,想
要改变现状,学一门靠谱、有前景的技术

对室内设计行业有兴趣
对室内设计行业有浓厚兴趣,想通
过学一门技术来获得工作能力

环境艺术设计/视觉传达专业
学过环境艺术设计、视觉传达,等CAD软
件专业,是学这门课的合适人选

转行做室内设计
如果你未来的职业生涯致力于室内设计,
本课程会带你成功转型

大学、高中刚毕业,期待学一门有
前景的技术

学CAD升级的不仅是你的技能,还有职
业角色,懂设计发展“钱”景更足

非室内或家装行业迫切要转行的群体,想
要改变现状,学一门靠谱、有前景的技术

对室内设计行业有浓厚兴趣,想通
过学一门技术来获得工作能力

学过环境艺术设计、视觉传达,等CAD软
件专业,是学这门课的合适人选

如果你未来的职业生涯致力于室内设计,
本课程会带你成功转型
CAD施工图,是将项目的总体布局、内外构造、整体布置装修、材料作法以及设备、施工等环节图纸化,具有图纸齐全、表达准确、要求具体的特点,随着房地产、室内设计等行业的爆炸式发展,对CAD专业人才的需求更是几何级倍增。

掌握CAD制图入行室内设计
过万月薪只是开始,长远发展才是“金饭碗”

上市品牌,丝路教育
室内设计培训头号梯队
AUTODESK官方认证培训机构拥有100多名认证导师
与北上广深众多一线名企达成人才战略合作
是70多家高等院校的
就业实训基地
丝路毕业学员每年
就业率均超98%
85%丝路学员毕业2-年晋升管理层

手绘阶段
可掌握的核心技能:①静物素描、透视与空间结构、光感明暗与色彩能力;②室内家具、装饰物品、不同室内场景的手绘效果图
解决的问题:①让没有绘画功底的零基础学员掌握室内手绘素描基础;②掌握室内家具、客厅、厨房、卧室、餐厅等室内场景的手绘效果图绘制能力

CAD阶段
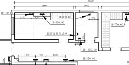
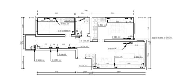
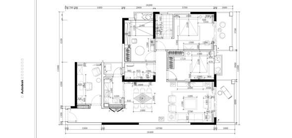
可掌握的核心技能:①了解CAD界面布局与功能,掌握视图颜色的设置;
②讲解基础命令,绘制简单平面几何图形;
③学习绘制简单建筑平面图与建筑立面图;
④布局的使用方法、技巧,以及如何使用布局空间规范化制图;
⑤规范标注以及套图框,学习绘制室内设计原始结构图;
⑥新户型的平面方案布置;
⑦填充命令使用技巧,绘制墙体拆改图以及地面铺装图;
⑧顶面方案布置图绘制,按照室内设计制图规范标准制图;
⑨开关、插座以及上下水点位的的布置技巧;
⑩演示客厅立面图的画法,绘制过程中会出现的常见错误指出;
⑪餐厅背景墙、走道,内部分区图绘制;
⑫床头背景墙、衣柜图,内部分区图绘制;
⑬装修构造,了解室内设计的常用材料,并学习绘制剖面图;
⑭认识草图大师界面、菜单栏和绘图命令,学习命令的使用和修改;
⑮利用所有的命令工具创建场景;
⑯窗、门以及房高的细节尺寸,绘制草图门窗模型;
⑰导入草图大师模型组合场景;
⑱输出成图片,动画,制作阶段性会议文件
解决的问题:掌握Auto CAD软件的应用与室内全套专业施工图;掌握草图大师软件的应用与制作室内专业草图
设计总监带你现场分析楼盘户型,
做时下热门的项目实训


你的导师不仅拥有十数年室内设计实战经验,而且还深谙教育之道,课程导师手把手全程面授教学

8年从业经验

《沧州图书馆书吧》
《海南太阳城大酒店》
《张家口量贩KTV》
......

9年从业经验

《卓越•蔚蓝海岸》
《达美-D6区》
《博士伦》
......
让你从入学到就业毫无桎梏,让你在职场如鱼得水

丝路“企业定制班”,一地学习,全国就业

企业面试官全程把控,模拟至少2-3次真实面试场景

每年至少2-3场大型招聘会,数场企业专场招聘会
参与了室内手绘效果图、平面布置图、给排水图纸、室内立面图等室内图纸绘制,独当一面完成商业作品创作,拿到室内设计人生的第一桶金。




学员真实感受是评判丝路教育服务质量的关键

在丝路学习的4个月中,先后接触了几位老师,感觉每一位老师的教学风格都各有不同。相同的是,他们都很认真、负责,非常有耐心。印象比较深的事就是当时我去试听课程的时候听的张老师的课,当时转行跨度比较大又没有任何设计基础,特别怕听不懂课。但是试听过后,发现张老师的课让人很容易跟着节奏听进去,讲的也比较有意思,然后我就决定来丝路了。

就老师水平来说,我觉得是比其他培训机构要高很多的。对比一下学员,其他培训机构的学员到我们公司来应聘,在面试时职业技能测试的时候,70%左右直接就被刷掉了。但是我们丝路确实不一样,这个我说的是实话,丝路的话80-90%基本都能留下来,走的也是自己主动离职。感谢在丝路的学习,让我确定了人生的方向,学到了真正的技术。

丝路的老师真的都很认真负责,教的东西也很全面。设计嘛,有时候会涉及到一些琐碎又很细节的知识点或者常识之类的,平时遇到什么不懂的,就及时去问老师,他们也都是很耐心的去再讲一遍,每次讲作业也是每个人每个小问题都会去讲。
