

如果你现在正从事建筑、室内设计行业,或者想
转行做室内设计,都需要掌握CAD。

CAD可以绘制复杂的工程图,绘制建筑图、 施工
制图,用CAD是更好的选择。




报读《CAD室内施工制图班》考取CAD工程师证及
ACAA中国数字艺术设计师证,让你具备职场三大优势
1.职场通行证,[国际厂商+专业院校+行业机构]认证
2.优先录用,拥有证书被企业优先录用;
3.升职加薪,职场获得赏识机会快人一步;

课程要点:
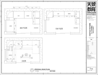
软件基础操作 墙体改造图 天花布置&灯具线路图
绘制原始户型框架 强弱电图 地面铺贴&地面索引图
给排水图

课程要点:
软件基础操作 工程预算 项目指导(考试&作品整理)
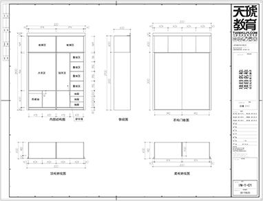
立面施工图(主卧&客餐厅&卫生间)
节点大样图(木工&泥工&油漆工)
平面施工图(墙体&天花&地面&电路&给排水)
天花布置&灯具线路图
课程研发,获著作权保护
课程严格实行全程面授
**学不会,免费重修
智能教学系统全程护航
教务老师解决生活问题
就业老师推荐就业
17年历史+ 56所校区
设计公司实训基地
众多合作企业人才中心



