

建筑设计(Architectural Design )是指建筑物在建造之前,设计者按照建设任务,把施工过程和使用过程中所存在的或可能发生的问题,事先作好通盘的设想,拟定好解决这些问题的办法、方案,用图纸和文件表达出来。作为备料、施工组织工作和各工种在制作、建造工作中互相配合协作的共同依据。便于整个工程得以在预定的投资限额范围内,按照周密考虑的预定方案,统一步调,顺利进行 。并使建成的建筑物充分满足使用者和社会所期望的各种要求及用途。


全日制班;19:00-22:00;
周末班;14:00-17:00

线下

软件及施工图
dwg图的读图识图
天正软件的零基础讲解
施工图识图读图
建筑设计总说明
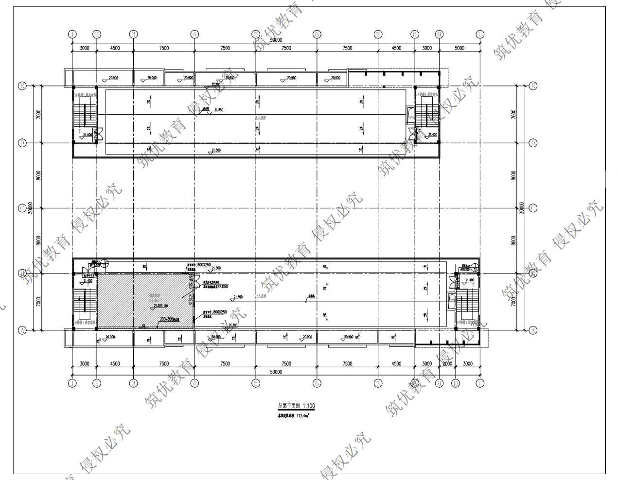
总平面图的绘制
建筑平面图
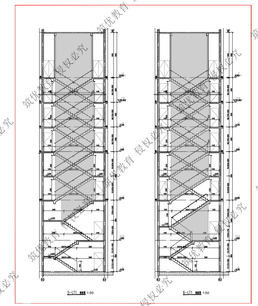
建筑立剖面图
立面图绘制要点
立面的表达形式
立面图纸的绘制实操
剖面图的绘制及实操
详图大样

曾工,武汉理工大学建筑学学士,
国家一级注册建筑师
7年设计院工作经验,
参与过20余个建筑设计项目,了解设计各个流程
对酒店公寓有着独特的理解,顺应行业发展趋势,有着丰富的施工图设计技巧,
参与项目:靖业现代企业中心、龙潭民居、青藤时光中心方版式高层公寓

谢工,毕业于云南大学,
甲级院建筑专业负责人、10年建筑设计经验;
参与设计住处住宅、办公楼、商业综合体;
高层及超高层建筑施工图设计,
参与项目:泰合·星耀城、乌兰察布市红海子体育公园、融创日月湾等

郭工,湖南大学建筑学硕士,中级工程师
湖南大学设计研究院既有建筑研究中心设计师,4年施工图建筑设计经验
参与作品:融水碧桂园、长沙某超高层住宅落地项目










